#精品推荐#南岸**Brossard 明亮静谧顶楼 明亮的转角公寓 新盘

111, Brossard, Longueuil, QC J4Y 0M3 地图周边 | 社区结构
#精品推荐#南岸**Brossard 明亮静谧顶楼 明亮的转角公寓 新盘
111, Brossard, Longueuil, QC J4Y 0M3
地图周边 | 社区结构
售价 (加元)
$459,000
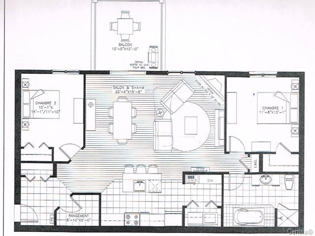
格局
2卧 1浴
1客厅 1餐厅 1厨房
物业类型
高级公寓

物件说明 - iU91 ID: 143601

  • 物件状态现房
  • 停车情况 2个室外车位
  • 交易方式 经纪代理
  • 建造年份 2012年建
  • 使用面积 约1095平方尺
  • 楼层 3/--(出售楼层/总楼层)
  • iU91编号 143601
  • MLS编号18474720

特色说明

明亮的转角顶层康斗,面积1095平方英尺,位于Brossard核心地段,步行即可到达REM轻轨站和DIX30商圈。两间卧室布局合理,开放式空间采光极佳,设有燃气壁炉,并享有仅与四户共享的独立入口。此单位极为少见,厨房炉具、壁炉及阳台BBQ均已接通天然气。提供两个私人停车位、室内储物空间,并可使用园景庭院与室外泳池。在快速发展的社区中,为您带来舒适、便利与宁静的居住体验。


更多细节

宽敞的两卧室单位,位于顶楼,使用面积1095平方英尺

仅与四户共享的独立入口,静谧不受干扰

罕见天然气配置:炉具、壁炉及阳台BBQ均可使用天然气

室内附带储物空间

两间卧室分居两侧,私密性更佳

厨房布局实用,设有额外储柜及洗衣空间

宽敞明亮的开放式客餐厅

社区设有室外泳池

大面积阳台

附带两个私人停车位


周边配套

步行可至REM轻轨站

紧邻DIX30商圈:餐厅、商店、影城、健身房及精品超市

附近有公园及自行车道,生活方式丰富

学校与日托中心步行可达

快速通往10号、30号及132号高速公路

地图周边

111, Brossard, Longueuil, QC J4Y 0M3

社区结构2021年人口统计数据

人口统计

总计男性女性
2021年该地区人口数量 8,171 ... ...
2016年该地区人口数量 6,278 ... ...
2006年到2011年该地区人口变化率 30.2 ... ...
个人住宅数量 3,871 ... ...
正常使用的个人住宅数量 3,644 ... ...
每平方公里人口密度 722.7 ... ...
该地区土地面积(平方公里) 11.31 ... ...

房价租金统计

总计男性女性
平均房价 ($) 428,800 ... ...
养房开销(包括税,贷款,水电煤,管理费) ($) 1,422 ... ...
有房屋贷款的居民比例 (%) 80.4 ... ...
租房开销(包括租金,水电煤,服务费) ($) 1,420 ... ...
独立房 410 ... ...
公寓(5层以上大楼) 355 ... ...
半独立屋 580 ... ...
排屋 160 ... ...
Duplex里的公寓 160 ... ...
公寓(4层以下大楼) 1,980 ... ...
其他独立住宅 0 ... ...
临时房 0 ... ...

收入统计

总计男性女性
2020年家庭平均收入 112,800 ... ...
2020年家庭平均税后收入 92,500 ... ...
家庭平均人口 2.9 ... ...
2020年无子女的家庭平均收入 104,600 ... ...
2020年无子女的家庭平均税后收入 85,200 ... ...
无子女的家庭平均人口 2.0 ... ...
2020年有子女家庭平均收入 127,000 ... ...
2020年有子女家庭平均税后收入 104,600 ... ...
有子女家庭平均人口 3.8 ... ...
2020年单亲家庭平均收入 96,000 ... ...
2020年单亲家庭平均税后收入 79,200 ... ...
单亲家庭平均人口 2.5 ... ...

语言统计

总计男性女性
只说英语的人数 1,050 535 515
只说法语的人数 1,440 620 820
可以说英法语的人数 5,340 2,640 2,700
不懂法语和英语的人数 340 160 185

族裔统计

总计男性女性
南亚人 275 145 130
中国人 1,330 610 715
黑人 570 285 285
菲律宾人 15 0 10
阿拉伯人 610 315 295
拉丁美洲人 625 285 340
东南亚人 140 80 60
西亚人 300 160 145
韩国人 35 0 30
日本人 20 15 10
其他民族 25 20 10
属于多个民族的后裔 205 85 120
非少数民族 3,915 1,805 2,110

职业统计

总计男性女性
立法和高级管理职位 85 65 15
商业,金融和行政 1,180 405 780
自然和应用科学领域工作 785 585 200
卫生保健行业 290 50 235
教育,法律,社区和政府工作 495 135 365
艺术,休闲,文化和体育行业 125 50 70
销售和服务性行业 1,325 655 675
技术工人,运输业,操作工及相关行业 455 400 60
自然资源,农业及相关行业 20 15 0
加工行业和公共事业 115 100 15

您最近访问的物业

发布人信息

留言问答

会员登录后可以留言

附近物件 点击查看更多周边房源

×
分类查询

售价 459,000$加元


联系发布人
顶部
底部
×
分类查询