[*皇家山别墅*近购物中心错层独立屋179万8]4卧3卫,高档小区,优质学区,要价低于市政估价 新盘

Netherton Ch, Mont-Royal, Montreal, QC H3P 2Z8 地图周边 | 社区结构
[*皇家山别墅*近购物中心错层独立屋179万8]4卧3卫,高档小区,优质学区,要价低于市政估价 新盘
Netherton Ch, Mont-Royal, Montreal, QC H3P 2Z8
地图周边 | 社区结构
售价 (加元)
$1,798,000
格局
4卧 3浴
3客厅 1餐厅 1厨房
物业类型
独立屋

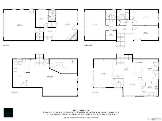
物件说明 - iU91 ID: 145778

  • 物件状态现房
  • 停车情况 双车库 4个以上室外车位
  • 交易方式 经纪代理
  • 建造年份 1959年建
  • 使用面积 约3289平方尺
  • 占地面积 约7256平方尺
  • 地面情况 客厅铺地板 卧室铺地板
  • 市政估价 $1962100
  • 房地产税 地税$9783/年
  • 学 校 税 学校税$1524/年
  • iU91编号 145778
  • 附属设施 空调 中央吸尘 壁炉 灯具 窗帘 全部电器
  • 周边环境 超级市场 购物中心 学校 托儿所 社区中心 体育设施 医疗机构 公园 警局 图书馆
  • 附近公车 近公车站
  • 附近地铁 近地铁站
  • 附近高速 近高速公路

特色说明

[*皇家山别墅*近购物中心错层独立屋179万8]4卧3卫,高档小区,优质学区,要价低于市政估价


【物业类型】独立别墅

【物业要价】$1,798,000

【房屋格局】4卧室,3卫浴

【建造年份】1959

【占地面积】7256平方英尺

【车位情况】1室内车库,6室外车位

【地理位置】1175 Ch. Netherton Mont-Royal H3P 2Z8

【基本情况】

宽敞的错层式TMR家庭住宅!

欢迎来到位于内瑟顿街1175号的这栋美丽的超大错层式住宅。这栋住宅非常适合正在成长中的家庭、大家庭以及热爱招待亲朋好友的家庭。房屋总居住面积约3288平方英尺(根据市政评估,不含地下室),拥有4间卧室、3间浴室,以及贯穿全屋的挑高天花板。房屋正面设有环绕式阳台。

这栋住宅拥有宽敞的起居空间、高耸的挑高天花板和充足的自然光线,为您提供梦寐以求的空间和灵活性。

半开放式的主层布局包括一个宽敞的客厅、一个配备优雅枫木橱柜的大型就餐厨房(可直接通往后露台和宽敞的后院),以及一个独立但又与之相连的餐厅,是招待客人的理想场所。

多层设计,满足每个人的需求——无论是在舒适的花园层家庭活动室放松身心,还是在楼上宽敞的卧室休憩,都能找到属于自己的空间。私密的后院是户外生活的理想场所,非常适合烧烤或玩耍。

这栋住宅配备双车位车库、可停放4辆车的车道,以及一个可停放2-3辆车的环形车道,直通您家门口。房屋储物空间充足,地理位置优越,靠近学校、公园、生活设施、公共交通和高速公路,是理想的家庭居所!

该房产拥有两个法定地址:1175 Chemin Netherton 和 336 Avenue Vivian。


* 预约参观:请提前 24小时预约。

*详情备索*


【Source】Centris No.11404548 ,THE AGENCY MONTRÉAL, Real Estate Agency

***其他大量二手房、期房/楼花、投资物业、生意**详情请联系:

电话:514-971-8628 (Leo广);

微信:guangleo8628;

邮箱:guangleo8628@outlook.com

**KWP地产集团 ----广Leo住宅及商业地产团队

*置业投资与房贷一站式服务

*新移民、工签、学签、外国旅游人士也可办理最高达65%的房贷 (有条件)

*利率仅3.69%起(电话洽询)


地图周边

Netherton Ch, Mont-Royal, Montreal, QC H3P 2Z8

社区结构2021年人口统计数据

人口统计

总计男性女性
2021年该地区人口数量 5,412 ... ...
2016年该地区人口数量 5,232 ... ...
2006年到2011年该地区人口变化率 3.4 ... ...
个人住宅数量 2,233 ... ...
正常使用的个人住宅数量 2,095 ... ...
每平方公里人口密度 3,903.4 ... ...
该地区土地面积(平方公里) 1.39 ... ...

房价租金统计

总计男性女性
平均房价 ($) 1,167,000 ... ...
养房开销(包括税,贷款,水电煤,管理费) ($) 2,004 ... ...
有房屋贷款的居民比例 (%) 48.3 ... ...
租房开销(包括租金,水电煤,服务费) ($) 1,380 ... ...
独立房 445 ... ...
公寓(5层以上大楼) 85 ... ...
半独立屋 430 ... ...
排屋 110 ... ...
Duplex里的公寓 240 ... ...
公寓(4层以下大楼) 775 ... ...
其他独立住宅 5 ... ...
临时房 0 ... ...

收入统计

总计男性女性
2020年家庭平均收入 236,400 ... ...
2020年家庭平均税后收入 159,400 ... ...
家庭平均人口 3.1 ... ...
2020年无子女的家庭平均收入 228,000 ... ...
2020年无子女的家庭平均税后收入 154,000 ... ...
无子女的家庭平均人口 2.0 ... ...
2020年有子女家庭平均收入 278,500 ... ...
2020年有子女家庭平均税后收入 183,600 ... ...
有子女家庭平均人口 4.0 ... ...
2020年单亲家庭平均收入 122,000 ... ...
2020年单亲家庭平均税后收入 95,000 ... ...
单亲家庭平均人口 2.6 ... ...

语言统计

总计男性女性
只说英语的人数 515 260 255
只说法语的人数 595 270 330
可以说英法语的人数 4,230 2,065 2,160
不懂法语和英语的人数 75 35 40

族裔统计

总计男性女性
南亚人 100 45 55
中国人 355 180 175
黑人 185 85 105
菲律宾人 10 0 10
阿拉伯人 370 180 190
拉丁美洲人 75 35 40
东南亚人 250 145 105
西亚人 35 30 10
韩国人 0 0 0
日本人 0 0 0
其他民族 0 0 0
属于多个民族的后裔 25 10 15
非少数民族 3,965 1,875 2,090

职业统计

总计男性女性
立法和高级管理职位 130 90 40
商业,金融和行政 685 270 415
自然和应用科学领域工作 370 285 80
卫生保健行业 385 140 240
教育,法律,社区和政府工作 385 125 260
艺术,休闲,文化和体育行业 110 40 70
销售和服务性行业 395 195 195
技术工人,运输业,操作工及相关行业 185 165 25
自然资源,农业及相关行业 10 10 0
加工行业和公共事业 20 15 0

您最近访问的物业

发布人信息

留言问答

会员登录后可以留言

附近物件 点击查看更多周边房源

×
分类查询

售价 1,798,000$加元


联系发布人
顶部
底部
×
分类查询