[*好别墅*圣劳伦近明珠小区半独立屋106万]5卧3卫,理想地点,位置优越 新盘

Marlatt Rue, Saint-Laurent, Montreal, QC H4M 2H5 地图周边 | 社区结构
[*好别墅*圣劳伦近明珠小区半独立屋106万]5卧3卫,理想地点,位置优越 新盘
Marlatt Rue, Saint-Laurent, Montreal, QC H4M 2H5
地图周边 | 社区结构
售价 (加元)
$1,064,000
格局
4+1卧 2+1浴
2客厅 1餐厅 1厨房 1 Den
物业类型
半独立屋

物件说明 - iU91 ID: 146205

  • 物件状态现房
  • 停车情况 单车库 4个室外车位
  • 交易方式 经纪代理
  • 建造年份 1952年建
  • 使用面积 约2142平方尺
  • 占地面积 约3944平方尺
  • 地面情况 客厅铺地板 卧室铺地板
  • 房地产税 地税$5119/年
  • 学 校 税 学校税$651/年
  • iU91编号 146205
  • 附属设施 空调 报警系统 灯具 部分电器
  • 周边环境 繁华大街 超级市场 购物中心 学校 托儿所 社区中心 体育设施 医疗机构 公园 警局 图书馆
  • 附近公车 近公车站
  • 附近高速 近高速公路

特色说明

[*好别墅*圣劳伦近明珠小区半独立屋106万]5卧3卫,理想地点,位置优越


【物业类型】半独立别墅

【物业要价】$1,064,000

【房屋格局】4+1卧室,2+1卫浴

【建造年份】1952

【占地面积】3944平方英尺

【车位情况】1室内车库,4室外车位

【地理位置】700 Rue Marlatt Montréal (Saint-Laurent)H4M 2H5

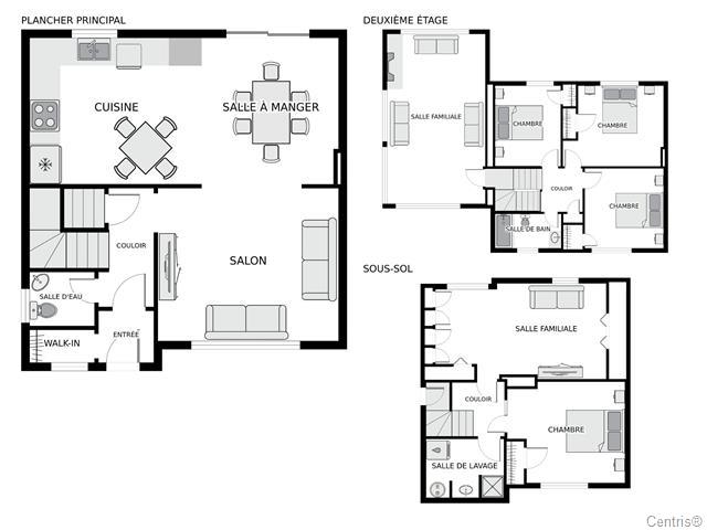
【基本情况】

位于圣劳伦市中心一条静谧街道上的半独立豪华别墅。维护良好,并已翻新。车库上方宽敞的高挑房间配有壁炉,可用作主卧或家庭活动室。宽敞的车库、铺设好的车道和美丽的私人后院。靠近所有生活设施、学校、公园、高速公路和公共交通。绝对值得一看!

特点和特色:

三层楼的设计都以便利性和功能性为核心。

顶层:

宽敞明亮的主卧。

车库上方的宽敞房间配有壁炉,可用作主卧或家庭活动室。

全新装修的宽敞浴室。

另外两间卧室采光充足。

带浴缸的公共浴室。

优雅的走廊和时尚的楼梯。

底层:

明亮的客厅配有大窗户。

宽敞的餐厅。

客用卫生间。

漂亮的开放式厨房与餐厅相连。

餐厅可直接通往阳台。

地下室:

宽敞的家庭活动室。

大小适中的卧室。

仅配备淋浴的浴室。

车库:

带暖气的车库。

储物空间。

室外:

漂亮的阳台。

带围栏的院子。

包含一个大型凉亭。

铺设石板的车道。

翻新和改造:

2011年:厨房翻新。

2011年:更换窗户、露台门和主入口门。

2011年:更换车库门。

2011年:更换屋顶。

2011年:露台翻新。

2012年:安装壁挂式空调热泵。

2017年:铺设车道和前阳台石板。

2020年:安装凉亭。

2025年:楼上浴室翻新。

客厅复合地板下铺设实木地板。

车库楼上房间的地毯下是实木地板。


* 预约参观:请提前 24小时预约。

*详情备索*


【Source】Centris No.14066596 ,IMMOPEDIA Jilil Bugra, Real Estate Agency

***其他大量二手房、期房/楼花、投资物业、生意**详情请联系:

电话:514-971-8628 (Leo广);

微信:guangleo8628;

邮箱:guangleo8628@outlook.com

**KWP地产集团 ----广Leo住宅及商业地产团队

*置业投资与房贷一站式服务

*新移民、工签、学签、外国旅游人士也可办理最高达65%的房贷 (有条件)

*利率仅3.69%起(电话洽询)

地图周边

Marlatt Rue, Saint-Laurent, Montreal, QC H4M 2H5

社区结构2021年人口统计数据

人口统计

总计男性女性
2021年该地区人口数量 7,061 ... ...
2016年该地区人口数量 7,329 ... ...
2006年到2011年该地区人口变化率 - 3.7 ... ...
个人住宅数量 3,122 ... ...
正常使用的个人住宅数量 2,720 ... ...
每平方公里人口密度 4,698.6 ... ...
该地区土地面积(平方公里) 1.50 ... ...

房价租金统计

总计男性女性
平均房价 ($) 594,000 ... ...
养房开销(包括税,贷款,水电煤,管理费) ($) 1,508 ... ...
有房屋贷款的居民比例 (%) 60.8 ... ...
租房开销(包括租金,水电煤,服务费) ($) 1,078 ... ...
独立房 375 ... ...
公寓(5层以上大楼) 335 ... ...
半独立屋 360 ... ...
排屋 0 ... ...
Duplex里的公寓 320 ... ...
公寓(4层以下大楼) 1,320 ... ...
其他独立住宅 5 ... ...
临时房 5 ... ...

收入统计

总计男性女性
2020年家庭平均收入 118,300 ... ...
2020年家庭平均税后收入 96,100 ... ...
家庭平均人口 3.2 ... ...
2020年无子女的家庭平均收入 98,400 ... ...
2020年无子女的家庭平均税后收入 78,800 ... ...
无子女的家庭平均人口 2.0 ... ...
2020年有子女家庭平均收入 140,800 ... ...
2020年有子女家庭平均税后收入 114,000 ... ...
有子女家庭平均人口 4.1 ... ...
2020年单亲家庭平均收入 85,000 ... ...
2020年单亲家庭平均税后收入 71,000 ... ...
单亲家庭平均人口 2.6 ... ...

语言统计

总计男性女性
只说英语的人数 1,450 745 710
只说法语的人数 985 465 520
可以说英法语的人数 4,315 2,180 2,135
不懂法语和英语的人数 305 120 190

族裔统计

总计男性女性
南亚人 610 300 310
中国人 1,005 510 495
黑人 510 210 300
菲律宾人 225 120 110
阿拉伯人 585 320 265
拉丁美洲人 270 145 125
东南亚人 515 250 260
西亚人 60 30 30
韩国人 60 20 40
日本人 0 0 0
其他民族 90 40 50
属于多个民族的后裔 100 45 55
非少数民族 3,020 1,510 1,510

职业统计

总计男性女性
立法和高级管理职位 50 35 15
商业,金融和行政 705 285 415
自然和应用科学领域工作 550 400 150
卫生保健行业 350 115 240
教育,法律,社区和政府工作 445 120 325
艺术,休闲,文化和体育行业 125 60 65
销售和服务性行业 975 495 485
技术工人,运输业,操作工及相关行业 380 355 25
自然资源,农业及相关行业 10 10 0
加工行业和公共事业 160 80 85

您最近访问的物业

发布人信息

留言问答

会员登录后可以留言

附近物件 点击查看更多周边房源

×
分类查询

售价 1,064,000$加元


联系发布人
顶部
底部
×
分类查询