[*南岸好别墅*S区学区房宏伟独立屋79万9]3卧2卫,绝佳位置,近南岸国际中学和世纪超市 新盘

Sabourin Crois, Brossard, Longueuil, QC J4X 2B4 地图周边 | 社区结构
[*南岸好别墅*S区学区房宏伟独立屋79万9]3卧2卫,绝佳位置,近南岸国际中学和世纪超市 新盘
Sabourin Crois, Brossard, Longueuil, QC J4X 2B4
地图周边 | 社区结构
售价 (加元)
$799,000
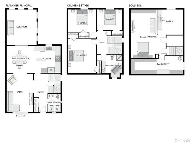
格局
3卧 1+1浴
2客厅 1餐厅 1厨房 1 Den
物业类型
独立屋

物件说明 - iU91 ID: 146467

  • 物件状态现房
  • 停车情况 2个室外车位
  • 交易方式 经纪代理
  • 建造年份 1986年建
  • 占地面积 约4633平方尺
  • 地面情况 客厅铺地板 卧室铺地板
  • 市政估价 $753900
  • 房地产税 地税$3338/年
  • 学 校 税 学校税$490/年
  • iU91编号 146467
  • 附属设施 空调 中央吸尘 游泳池 壁炉 灯具 窗帘 全部电器
  • 周边环境 繁华大街 超级市场 购物中心 学校 托儿所 社区中心 体育设施 医疗机构 公园 警局 图书馆
  • 附近公车 近公车站
  • 附近高速 近高速公路

特色说明

[*南岸好别墅*S区学区房宏伟独立屋79万9]3卧2卫,绝佳位置,近南岸国际中学和世纪超市


【物业类型】独立别墅

【物业要价】$799,000

【房屋格局】3卧室,1+1卫浴

【建造年份】1986

【占地面积】4633平方英尺

【车位情况】2室外车位

【地理位置】795 Crois. Sabourin Brossard J4X 2B4

【基本情况】

绝佳位置!这套三卧住宅位于布罗萨德 (Brossard) 备受青睐的“S”区一条静谧的街道上,地理位置优越。房屋设有一间浴室和一间盥洗室。宽敞的开放式客厅、餐厅和厨房连为一体。阳光房设有通往后院的落地玻璃门。已装修的地下室设有家庭活动室、游戏室和大型储藏室。朝南的后院景色宜人,并配有带围栏的恒温地下游泳池。房屋靠近学校、公园、托儿所、自行车道、Dix30 购物区、轻轨 (REM)、公共交通以及所有生活配套设施。

这套温馨的三卧住宅位于布罗萨德 (Brossard) 的静谧区域。驾车经由尚普兰桥 (Champlain Bridge) 或乘坐附近的轻轨 (REM) 可轻松前往蒙特利尔市中心。

* 宽敞的开放式客厅、餐厅和厨房。

* 现代化的厨房(2010 年翻新),配有中央岛台。

* 餐厅旁的大型阳光房建于 2012 年,可通往后院。

* 主层设有盥洗室和洗衣房。

* 二楼宽敞的主卧,配有男女主人各自的衣帽间。

* 二楼另有两间大小适中的卧室。其中一间卧室配有壁床。

* 大型翻新浴室(2023年),配有独立淋浴间和按摩浴缸(2007年)。石英石台面和地暖。

* 地下室包括一间家庭活动室(配有第二张壁床)、游戏室和大型储物区。

* 朝南的阳光充足的后院,设有带围栏的恒温地下游泳池。

特色及升级:

* 主层实木地板和楼梯扶手于2017年更换。

* 泳池热泵于2023年更换。

* 泳池管道于2025年更换。

* 全新泳池围栏于2025年安装。

* 泳池内衬于2018年更换。

* 壁挂式空调热泵(制冷制热)。

* 中央吸尘系统。

* 装饰性壁挂式电壁炉。

* 地下室雪松木衣橱。

* 大型储藏室。

* 花园小屋。

注:

- 黄铁矿:IPPG 8,无风险


* 预约参观:请提前 24小时预约。

*详情备索*


【Source】Centris No.11105316 ,ROYAL LEPAGE TRADITION Steven Souaid , Real Estate Agency

***其他大量二手房、期房/楼花、投资物业、生意**详情请联系:

电话:514-971-8628 (Leo广);

微信:guangleo8628;

邮箱:guangleo8628@outlook.com

**KWP地产集团 ----广Leo住宅及商业地产团队

*置业投资与房贷一站式服务

*新移民、工签、学签、外国旅游人士也可办理最高达65%的房贷 (有条件)

*利率仅3.69%起(电话洽询)


地图周边

Sabourin Crois, Brossard, Longueuil, QC J4X 2B4

社区结构2021年人口统计数据

人口统计

总计男性女性
2021年该地区人口数量 5,437 ... ...
2016年该地区人口数量 4,568 ... ...
2006年到2011年该地区人口变化率 19.0 ... ...
个人住宅数量 2,318 ... ...
正常使用的个人住宅数量 2,158 ... ...
每平方公里人口密度 6,582.3 ... ...
该地区土地面积(平方公里) 0.83 ... ...

房价租金统计

总计男性女性
平均房价 ($) 530,500 ... ...
养房开销(包括税,贷款,水电煤,管理费) ($) 1,300 ... ...
有房屋贷款的居民比例 (%) 45.6 ... ...
租房开销(包括租金,水电煤,服务费) ($) 1,848 ... ...
独立房 545 ... ...
公寓(5层以上大楼) 1,300 ... ...
半独立屋 150 ... ...
排屋 25 ... ...
Duplex里的公寓 0 ... ...
公寓(4层以下大楼) 135 ... ...
其他独立住宅 0 ... ...
临时房 0 ... ...

收入统计

总计男性女性
2020年家庭平均收入 128,600 ... ...
2020年家庭平均税后收入 99,800 ... ...
家庭平均人口 2.7 ... ...
2020年无子女的家庭平均收入 107,000 ... ...
2020年无子女的家庭平均税后收入 83,000 ... ...
无子女的家庭平均人口 2.0 ... ...
2020年有子女家庭平均收入 159,000 ... ...
2020年有子女家庭平均税后收入 123,200 ... ...
有子女家庭平均人口 3.9 ... ...
2020年单亲家庭平均收入 144,000 ... ...
2020年单亲家庭平均税后收入 112,000 ... ...
单亲家庭平均人口 2.7 ... ...

语言统计

总计男性女性
只说英语的人数 650 280 375
只说法语的人数 1,345 340 1,005
可以说英法语的人数 3,285 1,455 1,825
不懂法语和英语的人数 155 55 100

族裔统计

总计男性女性
南亚人 300 155 145
中国人 625 300 320
黑人 135 55 80
菲律宾人 60 30 25
阿拉伯人 175 105 75
拉丁美洲人 100 35 65
东南亚人 190 90 100
西亚人 135 65 65
韩国人 0 0 0
日本人 10 10 0
其他民族 0 0 0
属于多个民族的后裔 55 35 20
非少数民族 2,600 1,170 1,440

职业统计

总计男性女性
立法和高级管理职位 35 20 10
商业,金融和行政 340 120 220
自然和应用科学领域工作 295 230 65
卫生保健行业 145 40 105
教育,法律,社区和政府工作 150 45 110
艺术,休闲,文化和体育行业 65 35 35
销售和服务性行业 525 275 255
技术工人,运输业,操作工及相关行业 105 100 0
自然资源,农业及相关行业 0 0 0
加工行业和公共事业 40 25 15

您最近访问的物业

发布人信息

留言问答

会员登录后可以留言

附近物件 点击查看更多周边房源

×
分类查询

售价 799,000$加元


联系发布人
顶部
底部
×
分类查询