卖38层1层的单身贵族公寓

Rene-Levesque Boul O, Montreal, QC H3G 1T7 地图周边 | 社区结构
卖38层1层的单身贵族公寓
Rene-Levesque Boul O, Montreal, QC H3G 1T7
地图周边 | 社区结构
售价 (加元)
$369,000
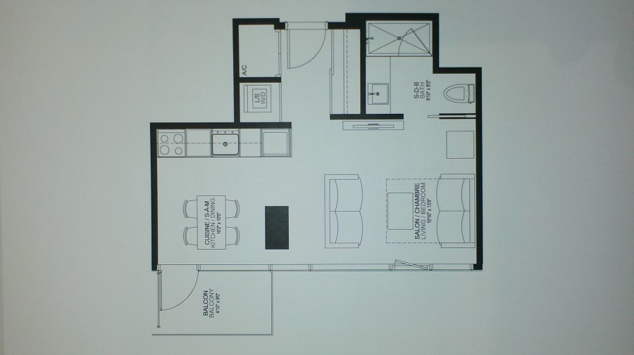
格局
1+1浴
1客厅 1厨房
物业类型
高级公寓

物件说明 - iU91 ID: 031023

  • 物件状态现房
  • 交易方式 业主自售
  • 建造年份 2017年建
  • 使用面积 约412平方尺
  • 占地面积 约412平方尺
  • 房屋朝向 正门 - 朝东 后窗 - 朝西
  • 楼层 16/38(出售楼层/总楼层)
  • 管理费用 $138/月
  • iU91编号 031023
  • 附属设施 空调 中央吸尘 空气交换 游泳池 灯具 窗帘 部分电器
  • 周边环境 繁华大街 超级市场 购物中心 公园 水景 警局
  • 附近公车 近公车站 - 步行约1分钟
  • 附近地铁 近地铁站 - 步行约2分钟
  • 附近高速 近高速公路 - 约2分钟车程
  • 附近火车 近火车站 - 步行约3分钟

特色说明

这是一个地标性建筑,就是YUL phase 1,这个户型已售完,户型漂亮豪华,在16楼,大浴室,开放型厨房,有一面玻璃墙面向西,有室内桑拿,户内外游泳池,看门人,24小时监控。厨房家具是意大利的,我想转让, 2018年刚成交。2019 又 换了新地板,是单身贵族投资和自住的首选。非诚勿扰。谢谢;

地图周边

Rene-Levesque Boul O, Montreal, QC H3G 1T7

社区结构2021年人口统计数据

人口统计

总计男性女性
2021年该地区人口数量 5,477 ... ...
2016年该地区人口数量 1,134 ... ...
2006年到2011年该地区人口变化率 383.0 ... ...
个人住宅数量 5,006 ... ...
正常使用的个人住宅数量 3,510 ... ...
每平方公里人口密度 15,067.4 ... ...
该地区土地面积(平方公里) 0.36 ... ...

房价租金统计

总计男性女性
平均房价 ($) 634,000 ... ...
养房开销(包括税,贷款,水电煤,管理费) ($) 1,952 ... ...
有房屋贷款的居民比例 (%) 70.0 ... ...
租房开销(包括租金,水电煤,服务费) ($) 1,656 ... ...
独立房 0 ... ...
公寓(5层以上大楼) 3,245 ... ...
半独立屋 0 ... ...
排屋 15 ... ...
Duplex里的公寓 0 ... ...
公寓(4层以下大楼) 255 ... ...
其他独立住宅 0 ... ...
临时房 0 ... ...

收入统计

总计男性女性
2020年家庭平均收入 104,200 ... ...
2020年家庭平均税后收入 76,800 ... ...
家庭平均人口 2.4 ... ...
2020年无子女的家庭平均收入 100,400 ... ...
2020年无子女的家庭平均税后收入 75,600 ... ...
无子女的家庭平均人口 2.0 ... ...
2020年有子女家庭平均收入 178,000 ... ...
2020年有子女家庭平均税后收入 120,000 ... ...
有子女家庭平均人口 3.6 ... ...
2020年单亲家庭平均收入 51,600 ... ...
2020年单亲家庭平均税后收入 42,800 ... ...
单亲家庭平均人口 2.3 ... ...

语言统计

总计男性女性
只说英语的人数 2,245 1,155 1,095
只说法语的人数 240 125 115
可以说英法语的人数 2,840 1,440 1,400
不懂法语和英语的人数 150 65 85

族裔统计

总计男性女性
南亚人 165 85 80
中国人 1,830 775 1,060
黑人 135 70 65
菲律宾人 20 10 10
阿拉伯人 820 440 380
拉丁美洲人 110 60 50
东南亚人 65 35 25
西亚人 145 80 70
韩国人 65 30 35
日本人 25 20 0
其他民族 30 10 15
属于多个民族的后裔 100 40 60
非少数民族 1,550 905 645

职业统计

总计男性女性
立法和高级管理职位 85 65 20
商业,金融和行政 675 260 415
自然和应用科学领域工作 560 375 185
卫生保健行业 260 125 130
教育,法律,社区和政府工作 380 185 195
艺术,休闲,文化和体育行业 140 80 65
销售和服务性行业 570 305 270
技术工人,运输业,操作工及相关行业 140 105 30
自然资源,农业及相关行业 0 0 0
加工行业和公共事业 20 15 0

您最近访问的物业

发布人信息

留言问答

会员登录后可以留言

附近物件 点击查看更多周边房源

×
分类查询

售价 369,000$加元


联系发布人
顶部
底部
×
分类查询